It’s the middle of August but the DLP Report team is not on holiday. We’re excited to take you inside the upcoming Lion King themed land at Disneyland Paris, now in the initial phases of construction. Through Disney’s filings, let’s take a closure look at “Project Sun”!
The Land

The Lion King themed land will fit closely next to Avengers Campus with its main entrance directly on Adventure Bay. While it’s billed as a land, the show stopper will be the Lion King Attraction.

In this 3D rendering (which – disclaimer – only shows the bare minimum to get the construction approved), we can see the break between the Adventure Bay pavers and the “earthy” Lion King Land grounds.

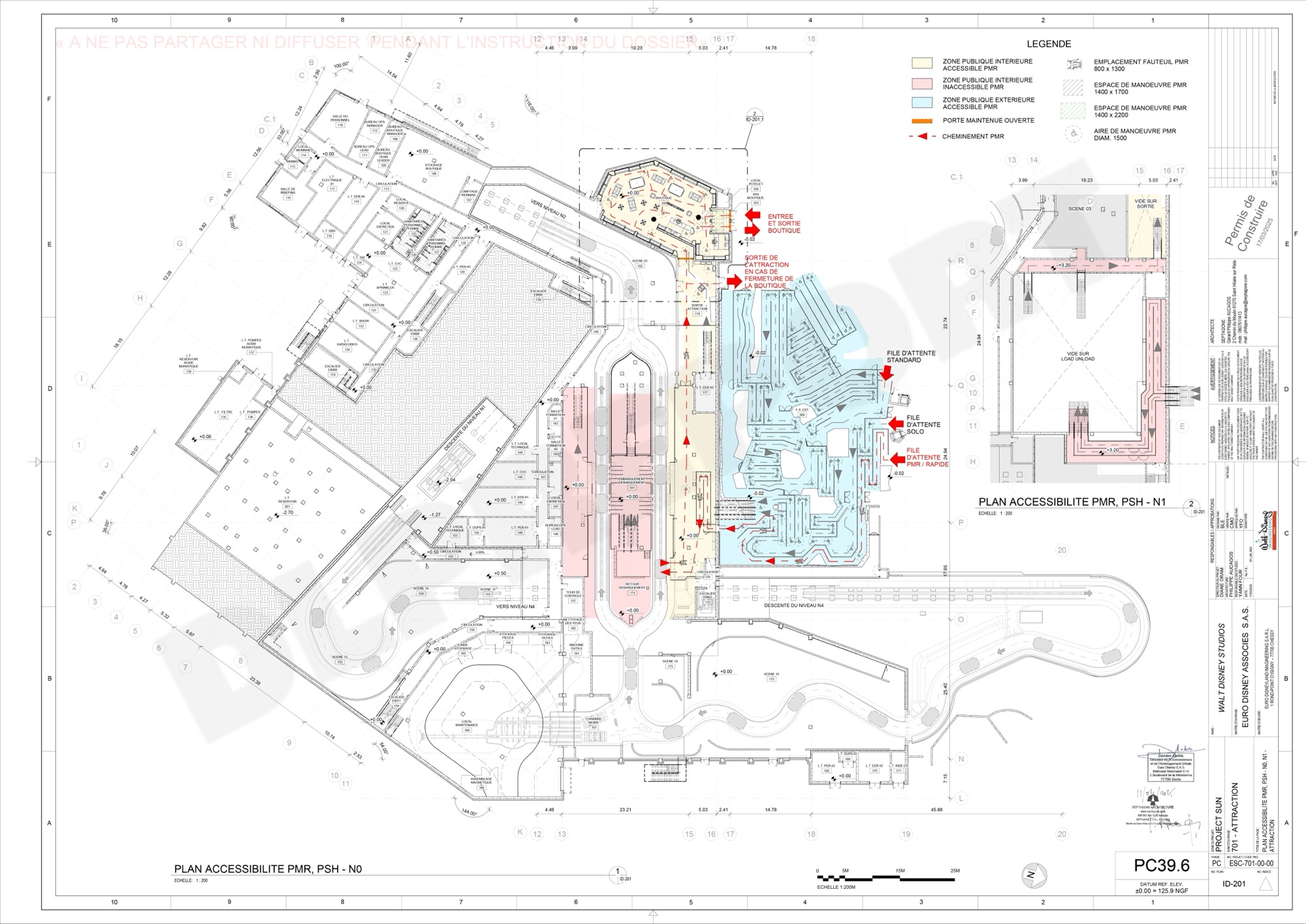
As you can see in the blueprints above, the show building will be absolutely massive. With a 13,755m2 total size and 11,143m2 of gross floor space (including the queue and the shop), this will be the biggest show building at the Resort and will take about half the pad allocated to the project.

From entering the land, it looks like the Imagineers will go for a slower reveal to minimize the impact of the massive building.

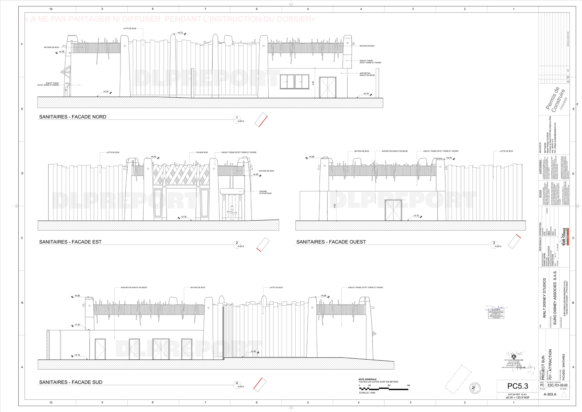
The land will also feature some amenities: a quick service restaurant, restrooms, meet and greet locations.

Zooming out to the entirety of Disney Adventure World, it’s clear that while the land is a good size, there’s still room for almost two more next to it before we reach World Of Frozen! In all likeliness, Disney may (one day?) fit one more land in this expansion pad but it’s good to know the space is being used sparingly to maximize expansion options.


And here are some additional views of the Disney Adventure World expansion area and the land itself.
Show Building


With such a massive show building, there’s going to be a lot of theming and covering – go away green for the entire back metallic facade, metal wire rock work in beige color of course, beige painted concrete and artificial plants that will ensure the show building looks the same year-long. Artificial thatched roofs will be used for the lower parts like the entrance and outdoor queue. The building will also feature an opening for the drop.

From the Guest facing areas, rendering show the extent of the rock work and the design of the entrance.

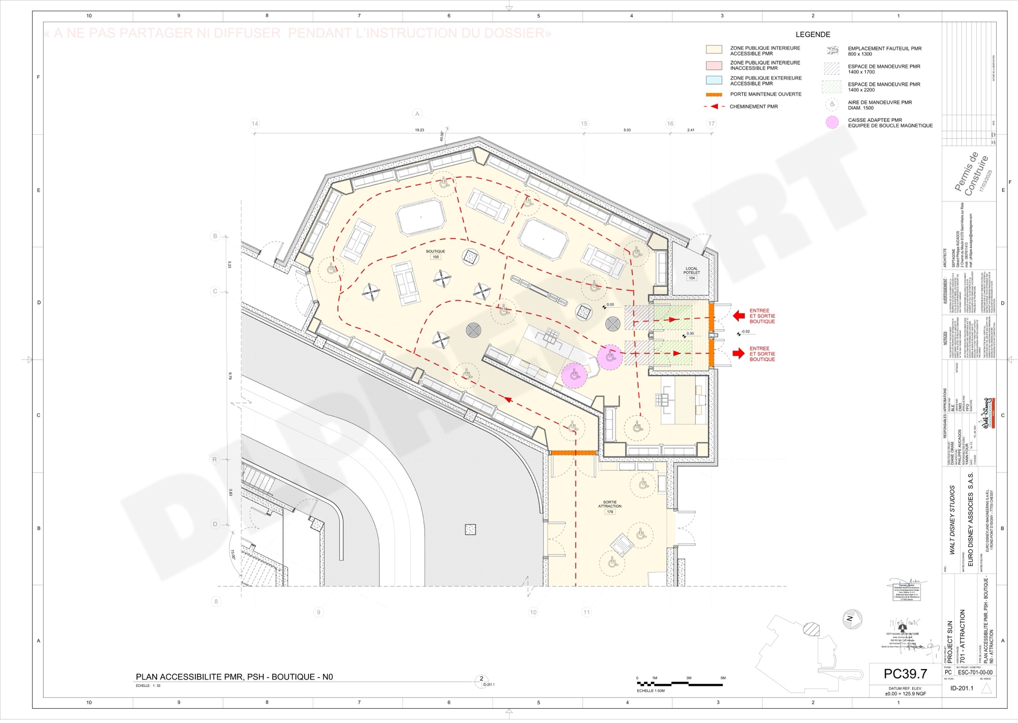
The 299m2 shop, which will most likely be the Attraction’s exit, looks fully integrated into this side of the rock work.

And here’s a look at the layout of the shop from the inside. Looks like it will also feature a separate PhotoPass pickup area, just like recent attractions like the Hero Training Center.

Taking about the drop, the show building blueprints clearly show the water flume drop.

Overall the show building will be 23 meters tall, with Pride Rock towering at a whopping 37 meters!
Attraction Layout



Now let’s look inside! In line with the big show building, the Lion King Attraction looks like it’s going to be a big adventure! Here are the stats:
- 2 lifts, 3 drops
- 19 scenes
- High-cap dual platform load station
- 3 queues
- PhotoPass

This puts the Attraction on par with something like the Frozen Attraction of Fantasy Springs in Tokyo, possibly even longer.

The outdoor / indoor queue will feature Standby, Accessible / Premier Access and Single Rider, all joining together into a massive loading station with two docks that should, together with large boats, ensure very high capacity.
Amenities

The Lion King themed land will feature a new 63m2 quick service restaurant with a covered terrace.

The huge terrace will bring the total size of the F&B area to 307m2.

Here’s a look inside the preparation rooms – it looks small because the entire seating area is the covered terrace so this will be for food prep, the counters, and whatever the “Coke Room” is!
Hopefully the food options will be interesting – but not holding my breath.

What would be a mini land without restrooms? Even with these simple 3D renderings it looks like these will be well themed.

They’ll also include a family room.

And here’s a look at the indoor layout for this facilities building. Pretty standard with thankfully some good capacity (looking at you, Avengers Campus).
What’s Next

As part of the filing, Disney included this photo of the expansion pad.

Quite a bit has happened since then, including some land clearing and height measurement.

In another backstage area, this structure is being built to test the drop that will be featured on the Attraction.

And if you’d like to explore photos and an exclusive interactive 3D rendering of the Lion King themed land model – that was only exhibited last year at D23, check out our special feature RIGHT HERE




